Aannemersbedrijf Berger & Zeldenrijk B.V. heeft in de afgelopen 25 jaar een grote diversiteit aan projecten opgeleverd. Een impressie hiervan kunt u via de onderstaande verwijzingen bekijken.
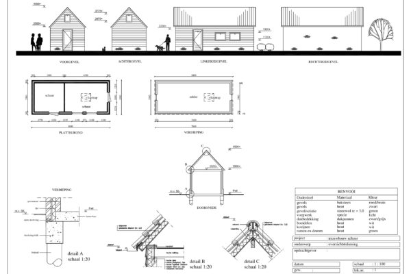
Naast het fysieke bouwen kan Aannemersbedrijf Berger & Zeldenrijk B.V. u ook helpen bij het verkrijgen van een bouwvergunning. Wij begrijpen dat er een hoop op u afkomt wanneer u besluit te gaan verbouwen of zelfs nieuw te bouwen. Vaak leidt dit tot een onoverzichtelijk geheel van eisen, regelgeving en partijen die hierbij aan bod komen. Aannemersbedrijf Berger & Zeldenrijk B.V. heeft ook hier ruime ervaring in opgebouwd en wij nemen u graag deze zorgen uit handen.
Samen kijken wij aan de hand van uw wensen of u daadwerkelijk een vergunning nodig heeft en welke berekeningen en tekeningen benodigd zijn. Wanneer u een vergunning nodig heeft dan werken wij samen met u de plannen uit in een bouwkundige tekening. Wanneer alles compleet en naar wens is, dienen wij de vergunningsaanvraag in bij de betreffende gemeentelijke instantie. Is de vergunning eenmaal afgegeven, dan start Aannemersbedrijf Berger en Zeldenrijk direct met de werkzaamheden.









































































